Zum Inhalt springen
Toggle Navigation
das Haus
Historie
Ansichten
Flächen
Vermietung
Kontakt
Flächen
2025-02-12T15:25:52+01:00
Flächen
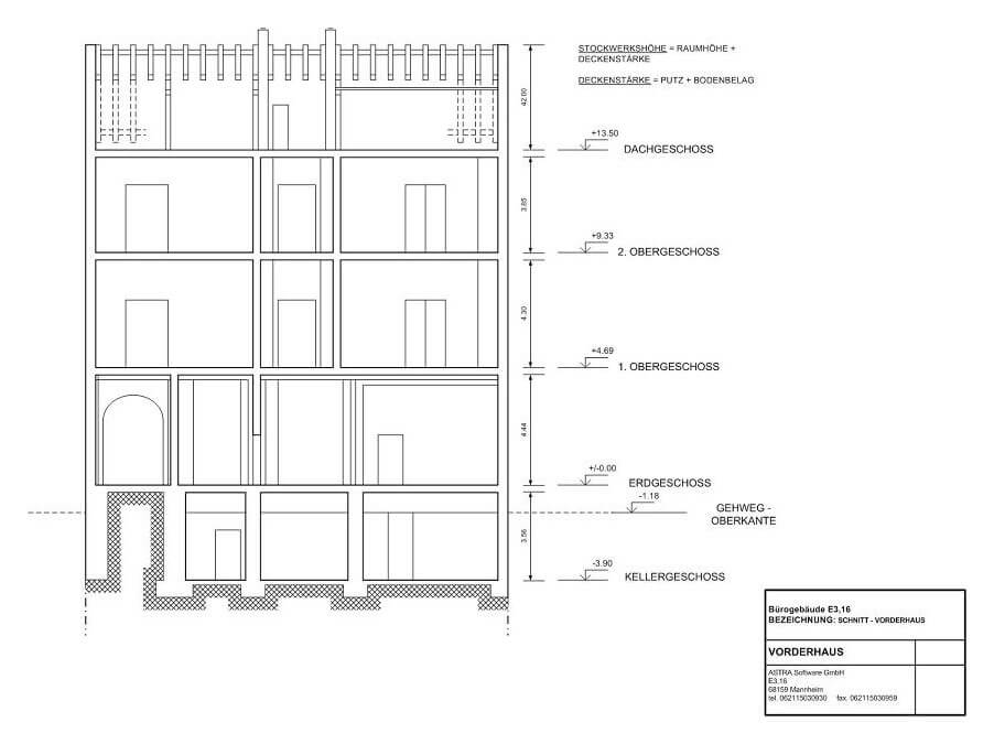
Vorderhaus
Plan
Kellergeschoss
Plan
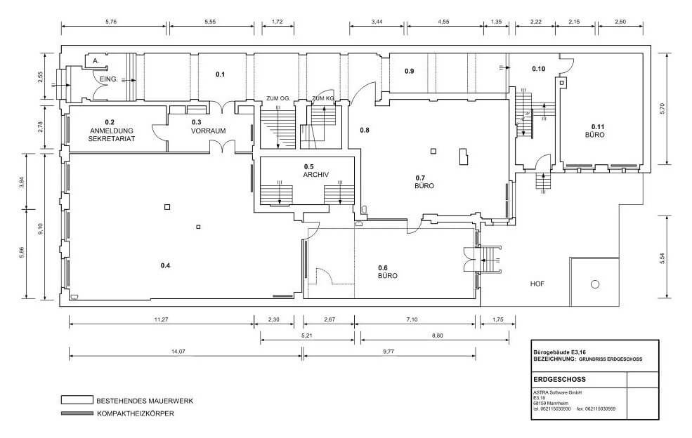
Erdgeschoss
Plan
Raumaufteilung
Raum 0.2
Raum 0.2
2,76 x 5,76
15,90 m²
Raum 0.3
Raum 0.3
2,76 x 5,38
14,79 m²
-0,39 x 0,19
Raum 0.4
Raum 0.4
11,32 x 9,08
116,86 m²
+2,81 x 5,25
– 0,52 x 0,35
– 0,51 x 0,42
– 0,43 x 0,30
– 0,31 x 0,25
– 0,19 x 0,42
Raum 0.5
Raum 0.5
4,67 x 3,02 x 0,50
6,30 m²
– 1,40 x 1,08 x 0,50
Raum 0.6
Raum 0.6
9,75 x 4,80
47,37 m²
+ 0,49 x 2,59
– 0,24 x 1,40
– 0,21 x 0,57
– 0,14 x 1,73
Raum 0.7
Raum 0.7
2,82 x 4,27
58,56 m²
– 0,25 x 0,96
– 0,44 x 0,39
+ 3,58 x 6,60
– 1,03 x 2,08
– 0,30 x 0,38
– 1,04 x 0,40
+ 3,89 x 6,60
+ 0,44 x 1,14
+ 0,14 x 1,23
– 0,11 x 0,69
– 0,19 x 0,59
– 1,46 x 0,13
Raum 0.8
Raum 0.8
3,32 x 2,84
8,29 m²
+ 0,70 x 0,74
– 0,52 x 0,12
– 0,95 x 1,68
Raum 0.11
Raum 0.11
5,75 x 4,90
27,90 m²
– 0,38 x 0,67
– 0,12 x 0,14
Toiletten
Toiletten 1.9
Toiletten 1.10
Toiletten 1.16
26,21 m²
Gesamtfläche: 322,17 m²
auf 1 m² kommen 0,41 m² Gemeinschaftsfläche
1. Obergeschoss
Plan
Raumaufteilung
Raum 1.1
Raum 1.1
3,23 x 4,80
15,50 m²
Raum 1.2
Raum 1.2
5,67 x 5,83
33,06 m²
Raum 1.3
Raum 1.3
5,73 x 7,47
42,80 m²
Raum 1.4
Raum 1.4
3,30 x 5,77
19,04 m²
Raum 1.5
Raum 1.5
5,80 x 7,47
43,33 m²
Raum 1.6
Raum 1.6
4,16 x 5,91
24,59 m²
Toiletten 1.1
Toiletten 1.1
1,26 x 4,55
5,73 m²
Raum 1.8
Raum 1.8
4,16 x 4,08
16,97 m²
Raum 1.9
Raum 1.9
5,73 x 3,43
19,65 m²
Raum 1.10
Raum 1.10
5,82 x 5,01
29,16 m²
Toiletten 1.11
Toiletten 1.11
4,00 x 1,85
7,4 m²
Raum 1.12
Raum 1.12
3,95 x 4,34
17,14 m²
Flur 1.13
Flur 1.13
13 x 1,48
19,24 m²
Raum 1.14
Raum 1.14
1,48 x 1,12
1,66 m²
Gesamtfläche: 295,27 m²
auf 1 m² kommen 0,41 m² Gemeinschaftsfläche
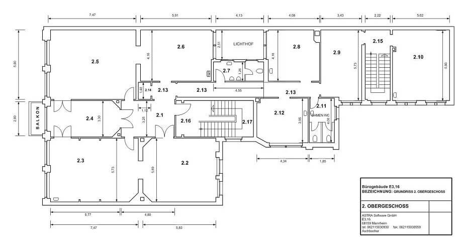
2. Obergeschoss
Plan
Raumaufteilung
Raum 2.1
Raum 2.1
4,80 x 3,25
15,60 m²
Raum 2.2
Raum 2.2
5,83 x 5,69
33,17 m²
Raum 2.3
Raum 2.3
7,47 x 5,73
42,80 m²
Raum 2.4
Raum 2.4
3,30 x 5,77
19,04 m²
Raum 2.5
Raum 2.5
7,47 x 5,80
43,33 m²
Raum 2.6
Raum 2.6
5,91 x 4,16
24,59 m²
Toiletten 2.7
Toiletten 2.7
1,26 x 4,55
5,73 m²
Raum 2.8
Raum 2.8
4,08 x 4,16
16,97 m²
Küche 2.9
Küche 2.9
3,43 x 5,73
19,65 m²
Raum 2.10
Raum 2.10
5,02 x 5,80
29,12 m²
Toiletten 2.11
Toiletten 2.11
1,85 x 4,00
7,40 m²
Raum 2.12
Raum 2.12
4,34 x 3,95
17,14 m²
Flur 2.13
Flur 2.13
13 x 1,48
19,24 m²
Raum 2.14
Raum 2.14
1,12 x 1,48
1,66 m²
Gesamtfläche: 295,44 m²
auf 1 m² kommen 0,41 m² Gemeinschaftsfläche
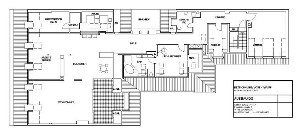
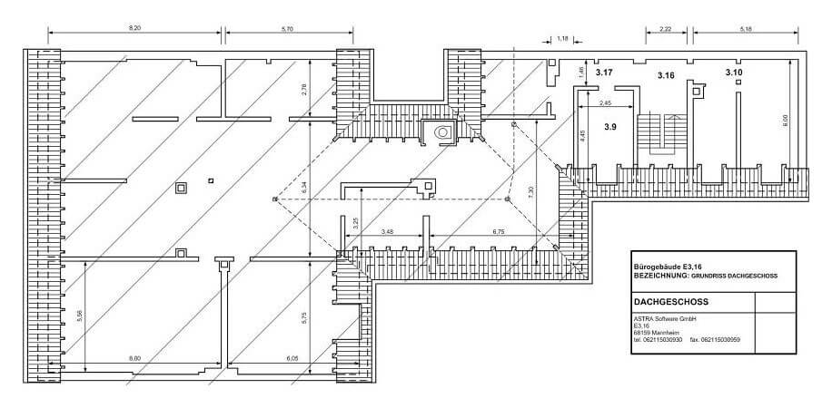
Dachgeschoss
Plan (umgebaute Variante)
Plan (ohne Änderung)
Raumaufteilung
Eingang
Eingang
6,20 x 1,50
10,90 m²
+ 1,00 x 1,20
+ 0,40 x 1,00
Flur
Flur
1,805 x 1,05
13,46 m²
+ 1,70 x 6,80
Diele
Diele
5,80 x 3,00
17,03 m²
– 1,25 x 0,30
Essplatz
Essplatz
5,40 x 6,50
36,50 m²
+ 3,50 x 0,80 / 2,00
Küche
Küche
4,30 x 2,75
11,83 m²
Vorrat
Vorrat
1,40 x 2,75
3,85 m²
Wirtschaftsraum
Wirtschaftsraum
3,60 x 2,75
12,10 m²
+ 1,60 x 2,75 / 2,00
Arbeitszimmer
Arbeitszimmer
3,10 x 6,40
23,98 m²
+ 1,60 x 6,40 / 2,00
– 0,70 x 0,70 x 2,00
Wohnzimmer
Wohnzimmer
6,90 x 5,75
43,26 m²
+ 1,60 x 5,75 / 2,00
– 1,70 x 0,60
Dachterrasse
Dachterrasse
( 4,20 x 2,40 + 1,60 x 1,70 )
6,40 m²
– 0,50 x 3,20 / 2,00
Ankleide
Ankleide
1,80 x 3,20
4,96 m²
– 0,50 x 3,20 / 2,00
Schlafzimmer
Schlafzimmer
4,25 x 2,80
12,80 m²
+ 0,50 x 1,80
Badezimmer
Badezimmer
4,00 x 2,50
10,00 m²
Zimmer
Zimmer
2,50 x 2,00
8,08 m²
+ 1,50 x 2,50 / 2,00
+ 2,40 x 1,00 / 2,00
Gäste WC, Dusche
Gäste WC, Dusche
1,60 x 2,60
5,66 m²
+ 1,00 x 1,50
Gesamtfläche Wohnung: 220,79 m²
Einzelzimmer: 25,16 m²
Ausbaualternative
Ausbau eines Appartments
ca. 30,00 m²
Wohnung
ca. 180,00 m²
Einzelzimmer
25,00 m²
Sind Sie an einer Mietfläche interessiert?
Kontaktieren Sie uns!
Page load link